Skip to content
HOME
PORTFOLIO
CONTACT
HOME
PORTFOLIO
CONTACT
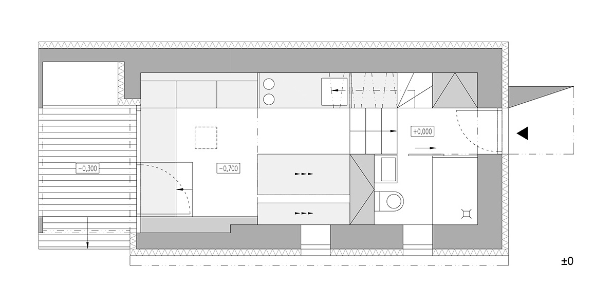
COURTYARD HOUSE RENOVATION, BRNO, CZ