Skip to content
HOME
PORTFOLIO
CONTACT
HOME
PORTFOLIO
CONTACT
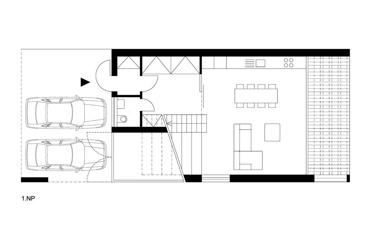
WEEKEND HOUSE BY THE RIVER, BRATISLAVA, SK
. . .